|
5套现代农村自建房,要建房的朋友赶紧收藏,2025新款现代自建房在越来越多的人想回家乡了,不仅仅是为了陪伴在家人身边,也是瞄准了农村这个市场,有钱有地,回乡建栋属于自己的房子,闲时喝茶赏花,过悠然自得的生活。在城市里待久了,回到农村,抬头看看天空,日出日落,夕阳西下,小桥流水,鸡鸣狗吠,才知道生活真的可以很美好。 即使在城市蜗居已久,但仍然心有所依,心之所向的故乡总是不停地出现在梦里。于是,回乡建一栋别墅,就成了此生最大的心愿。二层现代风别墅,简约时尚,以下深蓝智能房屋推出的每套图纸都有详细的尺寸布局,如果里面布局尺寸不满意,还可根据你的要求修改调整内部布局尺寸等,也可以根据你的地基要求量身定做设计。 为什么选择回乡建房? 为了家人: 父母年迈, 需要陪伴;孩子成长,需要更广阔的空间。回乡建房,让家人团聚,享受天伦之乐。 为了生活: 厌倦了城市的快节奏和高压,渴望回归自然,享受慢生活。日出而作,日落而息,闲时喝茶赏花,这才是生活本该有的样子。 为了投资: 农村市场潜力巨大,土地资源丰富。回乡建房,不仅可以自住,还可以作为民宿、农家乐等经营,实现财富增值。 今天,深蓝智能房屋小编为大家推荐几款二层现代风别墅,简约大气,在蓝天白云的映衬下,妥妥的成为村中一道靓丽的风景线 款式一:
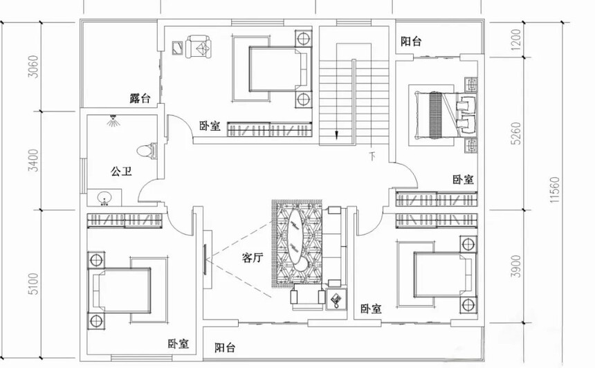
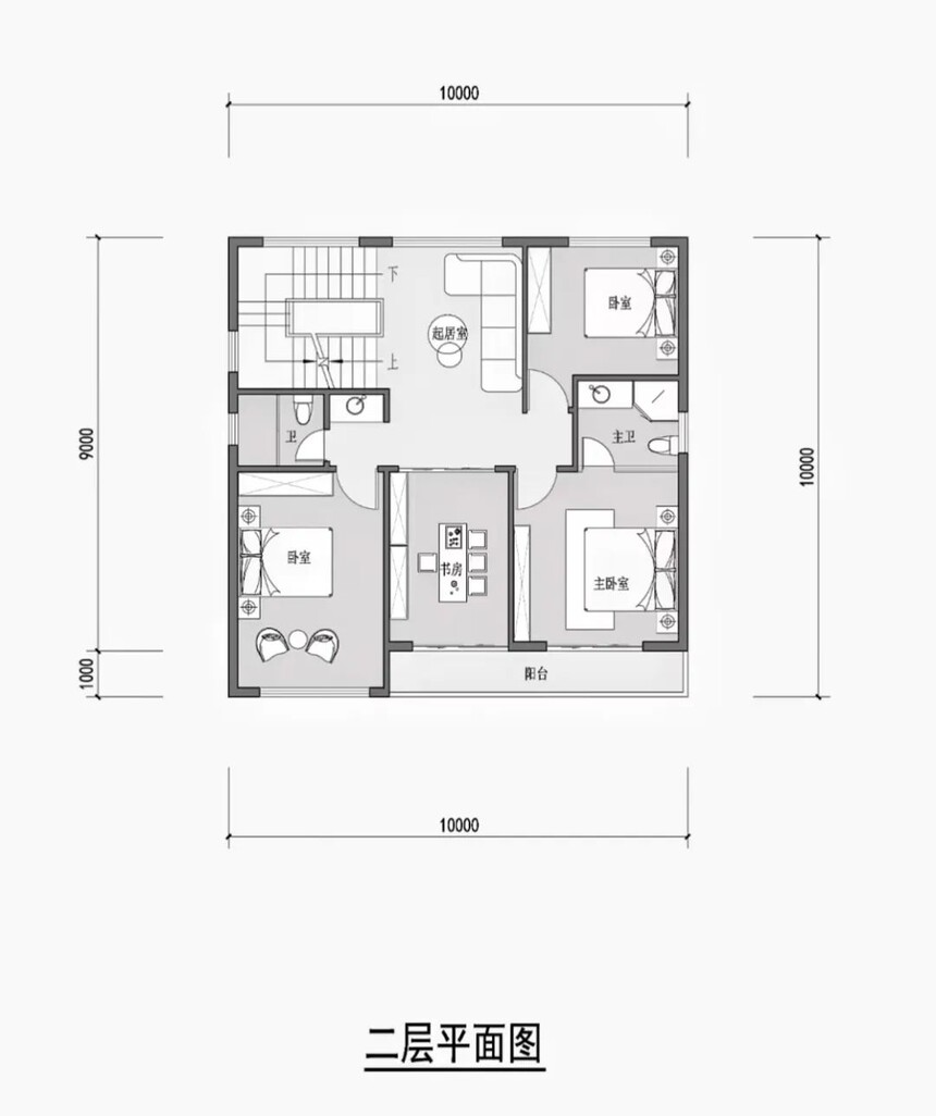
款式二:
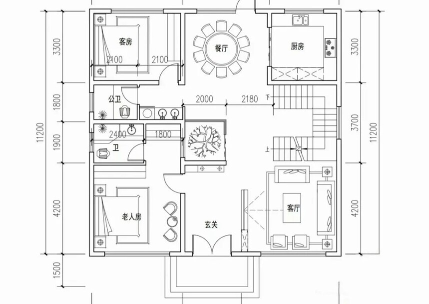
款式三:
款式四:
款式五:
你还在等什么? 赶紧联系我们,开启你的回乡建房之旅吧! 电话:0574-83066356 手机:13736138388 |














